top of page

Hamilton Buildings
The

Monroe

Monroe

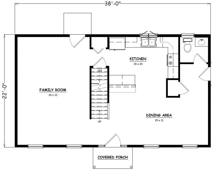
The Monroe home plan is a typical colonial with charming features throughout. The first floor is completely open concept, and the second floor is reserved for three bedrooms and two baths. 

1672

SQ FT

3

BEDS

2

BATHS

2

FLOOR

bottom of page