top of page
Locations
(607) 299-4838
Home
About Us
Blog
Testimonials
Specialties
Panelization Process
Post and Beam
Kitchen and Bath
Dealer Network
Floor Plans
Gallery
Exteriors
Interiors
Construction
Get Started
Contact Us
Events Calendar
More...
Use tab to navigate through the menu items.
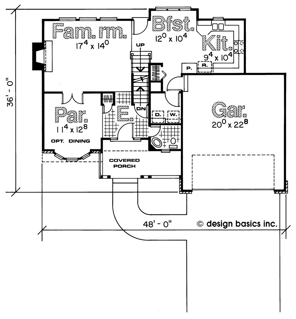
Hamilton Buildings
The
Cheyenne
Cheyenne
The Cheyenne includes a formal entranceway, a parlor with French doors, a covered porch and two car garage. The second floor features a spacious master suite, two bedrooms and two baths.
1710
SQ FT
3
BEDS
3
BATHS
2
FLOOR
Request Pricing
Cheyenne1710.jpg
1/3
bottom of page